Prezentowana działka o powierzchni 759 m² to wyjątkowa propozycja dla osób szukających miejsca pod wymarzony dom w malowniczym otoczeniu. Nieruchomość położona jest w Puli, jednym z najpiękniejszych miast Istrii, znanym z bogatej historii i klimatu sprzyjającego wypoczynkowi. Działka posiada ważne pozwolenie na budowę, co znacząco ułatwia rozpoczęcie inwestycji bez zbędnych formalności. Widok rozpościerający się z terenu nieruchomości obejmuje panoramę miasta, co dodaje miejscu wyjątkowego charakteru i podnosi komfort codziennego życia.
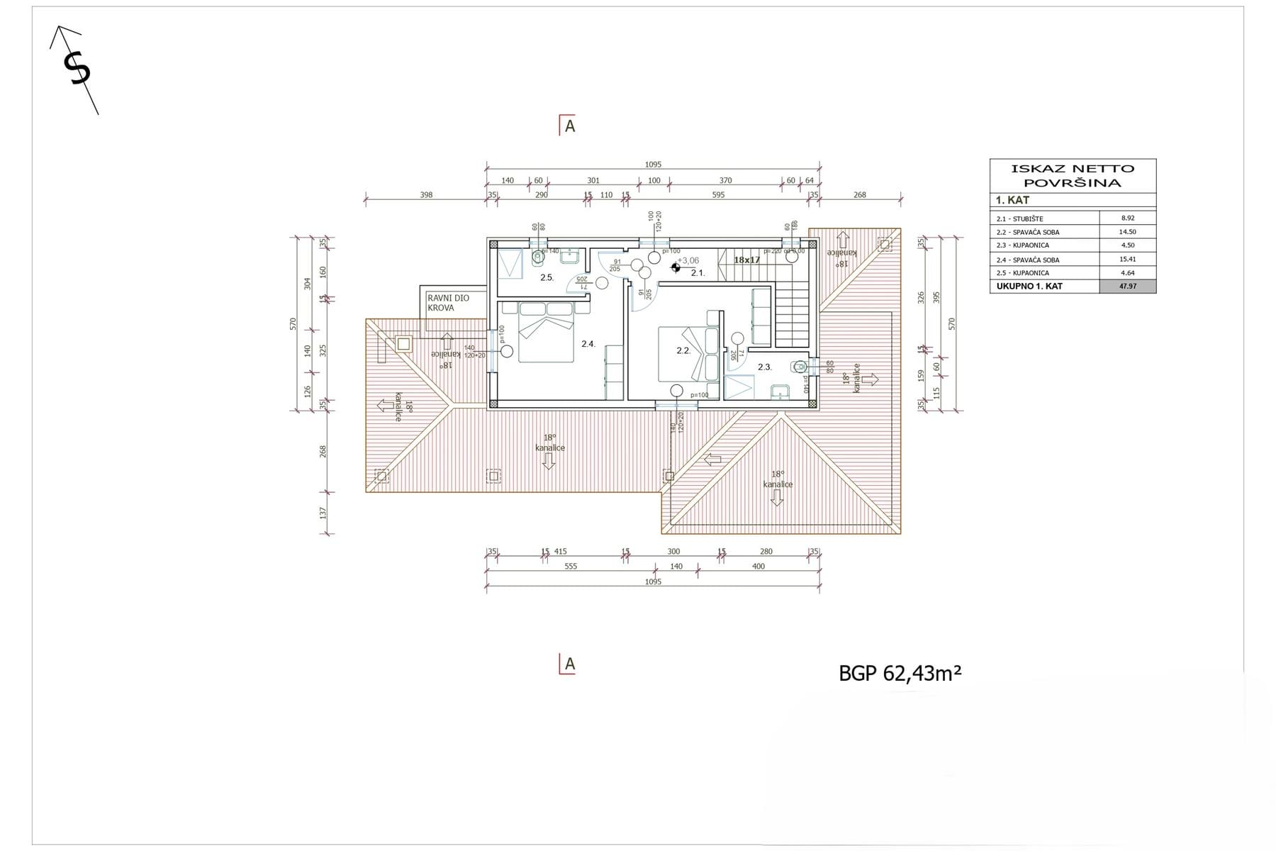
Planowany projekt przewiduje budowę domu jednorodzinnego z basenem, który będzie miał dwie kondygnacje nadziemne. Powierzchnia całkowita wyniesie ponad 160 m², a przestrzeń mieszkalna zostanie zaprojektowana tak, aby zapewnić wygodę i funkcjonalność dla całej rodziny. Lokalizacja działki gwarantuje spokój oraz bliskość wszystkich niezbędnych udogodnień miejskich.
Działka stanowi doskonałą bazę do realizacji nowoczesnego projektu architektonicznego. Jest odpowiednia dla osób ceniących przestrzeń i prywatność oraz chcących korzystać z uroków życia w pobliżu morza i atrakcji turystycznych.
Działka znajduje się na terenie o dogodnym ukształtowaniu terenu, co umożliwia łatwe prowadzenie prac budowlanych. Media są dostępne w pobliżu parceli, co przyspiesza proces inwestycyjny. W okolicy panuje spokojna atmosfera sprzyjająca relaksowi oraz rekreacji na świeżym powietrzu.
Nieruchomość idealnie nadaje się dla rodzin poszukujących komfortowego miejsca do życia lub jako inwestycja pod wynajem wakacyjny ze względu na atrakcyjną lokalizację i rosnące zainteresowanie regionem.
Pula to jedno z najstarszych miast Chorwacji położone na półwyspie Istria. Miasto słynie ze swojej bogatej historii sięgającej czasów rzymskich oraz licznych zabytków kultury. Klimat śródziemnomorski zapewnia łagodne zimy i ciepłe lata, co czyni tę lokalizację bardzo atrakcyjną zarówno do zamieszkania jak i wypoczynku.
Lokalizacja tej nieruchomości pozwala korzystać zarówno z miejskich udogodnień jak również ciszy okolicznych terenów zielonych. Bliskość centrum Puli umożliwia szybkie dotarcie do miejsc pracy czy szkół bez konieczności długich dojazdów. Region ten stale rozwija swoją ofertę turystyczną i mieszkaniową, co wpływa pozytywnie na wartość inwestycji.
Zainteresowanie zakupem działek budowlanych w regionie Istrii stale rośnie ze względu na unikalny klimat oraz perspektywy rozwoju turystyki. Wybór odpowiedniej oferty wymaga wsparcia specjalistów znających lokalny rynek nieruchomości oraz obowiązujące przepisy prawne związane z inwestowaniem za granicą.
Agencja Nieruchomości GoESTE oferuje kompleksową pomoc przy zakupie nieruchomości w Puli. Doświadczeni doradcy zadbają o każdy etap transakcji – od wyceny przez negocjacje cenowe aż po przygotowanie dokumentów niezbędnych do finalizacji umowy kupna-sprzedaży. Profesjonalizm agencji gwarantuje sprawną obsługę i bezpieczeństwo inwestycji.
Opiekun oferty
Agent Nieruchomości Warszawa
Agencja Nieruchomości GoESTE
Jeśli masz pytania odnośnie oferty lub potrzebujesz inne, chętnie odpowiemy.
Napisz do nas lub skontaktuj się telefonicznie.
Chorwacja to kraj położony na granicy Europy Środkowej oraz Europy Południowej. Położeniem Chorwacja dzieli się na część lądową w której znajduje się stolica kraju Zagrzeb oraz część nadmorska z wieloma znanymi miejscowościami turystycznymi takimi jak: Split, Zadar, Dubrownik, Rijeka. Jeśli chodzi o nieruchomości w Chorwacji to największym zainteresowaniem inwestorów cieszą się te nieruchomości na sprzedaż położone w części nadmorskiej kraju. Należy pamiętać, że Chorwacja oprócz części lądowej posiada także ogromną ilość wysp z czego kilkadziesiąt jest zamieszkałych. Dzięki temu łączna długość linii brzegowej morza wynosi ponad 5000km.
Chorwacja cieszy się bardzo dużą popularnością wśród turystów praktycznie z całej Europy. Bardzo duża część wpływów do chorwackiego PKB jest właśnie z usług turystycznych. Z tego powodu duża część inwestorów nabywa nieruchomości w Chorwacji właśnie z przeznaczeniem na wynajem turystyczny. Najbardziej popularne do tego celu są mieszkania 2 lub 3 pokojowe w bliskiej odległości do morza.
Nieruchomości w Chorwacji mają swój styl a przede wszystkim urok. W Chorwacji można spotkać zarówno bardzo stare pamiętające jeszcze czasy Średniowiecza części miast jak i typowo nowoczesne modernistyczne bryły. Tych drugich jest jednak zdecydowanie mniej. Dość dużą popularnością swego czasu cieszyły się stare kamienne domy, często dosłownie opuszczone. Kamień jest bardzo widoczny w chorwackiej architekturze. Domy w Chorwacji mają swój styl, który bardzo ciekawie komponuje się z otaczającą przyrodą dość typowy dla Południowej Europy. W najbliższe otoczenie domów idealnie komponują się przydomowe drzewa oliwne, figowce oraz powszechnie występująca winorośl.
Podobnie jak w przypadku innych krajów należy jeszcze przed zakupem określić przeznaczenie dla naszej nieruchomości. Nieruchomości w Chorwacji nabywane na cele turystyczne, aby skutecznie zarabiały powinny spełniać trochę inne oczekiwania niż te nabywane na zaspokojenie potrzeb indywidualnych. Nabywając nieruchomość dla siebie często jesteśmy gotowi do drobnych wyrzeczeń i ustępstw kosztem niższej ceny zakupu. W takiej nieruchomości najważniejsze, aby się dobrze czuć. W takim przypadku nawet 20 minutowa odległość od morza nie musi być dla nas wielką przeszkodą. W końcu po pierwszym nasyceniu letnim morzem nie musimy nad nim być codziennie.
Nieruchomości w Chorwacji przeznaczone na wynajem zarobkowy, aby na siebie zarabiały muszą spełniać oczekiwania turystów, którzy będą przebywali w nich przez ograniczony czas. Właśnie ten ograniczony czas sprawia, że oczekiwania wobec nieruchomości na którą zdecyduje się turysta powinny spełniać możliwie dużo oczekiwań. Bardzo ważna jest bliskość do morza oraz udogodnień rekreacyjnych. Bardzo dużym atutem jest oczywiście widok na Adriatyk z okien naszego mieszkania czy domu. Jeśli decydujemy się na dom to bardzo silnym atutem jest basen, który w upalne dni jest bardzo skuteczną formą relaksu. Turyści są gotowi zapłacić więcej właśnie za te atuty. Dlatego zdecydowanie większe zainteresowanie a co za tym idzie wyższą stopę zwrotu generują te mieszkania a apartamenty, które gwarantują dogodne warunki dla przyjezdnych. Turyści planujący wczasy w formie budżetowej raczej nie wybierają mieszkań i apartamentów tylko decydują się na bardzo popularne w Chorwacji pola kempingowe z domkami modułowymi oraz stanowiskami dla Kamperów.
Odpowiadając na to pytanie także należy zdecydować jakie ma być docelowe przeznaczenie nieruchomości. Jeśli planujemy nabyć mieszkanie lub dom w Chorwacji na zaspokojenie własnych potrzeb to mamy tutaj pełną dowolność i należy się kierować własnym gustem oraz głównymi oczekiwaniami stawianymi wymarzonej nieruchomości.
Jeśli natomiast nasza nieruchomość ma spełniać przede wszystkim wymogi zarobkowe to należy się skupić na takich okolicach, które są lub w przyszłości będą popularne wśród turystów. Pamiętajmy także, że trochę inne oczekiwania ma rodzina 2+2 a inne grupa młodych znajomych. Niewątpliwym atutem nieruchomości w Chorwacji o przeznaczeniu turystycznym jest komunikacja. Bliskość lotnisk ma tutaj niewątpliwy atut. Na szczęście w Chorwacji jest dość sporo lotnisk w miejscowościach nadmorskich, które są obsługiwane także przez tanie linie lotnicze. O ile najbardziej popularnym kierunkiem turystycznym ale też najdroższym jeśli chodzi o ceny nieruchomości jest Dubrownik o tyle decydując się na nieruchomości będące w zasięgu lotnisk w Zadarze oraz Splicie można jeszcze nabyć mieszkania w stosunkowo przystępnej cenie.
Chorwacja posiada długą linię morską i zdecydowana większość inwestycji w nieruchomości skupia się właśnie w tym rejonie. Morze Adriatyckie w tym rejonie ma bardzo piękne odcienie momentami wręcz widokówkowe. Jest to niewątpliwie ogromny atut turystyczny. Należy jednak podkreślić, że w Chorwacji jest bardzo mało typowych, piaszczystych plaż. Zdecydowanie większa część pasa nadmorskiego to kamieniste brzegi a w okolicy miast nawet betonowe. Oczywiście można w tych miejscach się kąpać, ale często sugerowane jest korzystanie ze specjalnego obuwia ochronnego. Z tego powodu okolice w których występują piaszczyste plaże zarówno w częściach lądowych jak i na wyspach są niezwykle popularne i pożądane. Bardzo urokliwe potrafią być także kameralne zatoczki, które dodają niezwykłego uroku. Niektóre z nich służą także do cumowania jachtów. Ukształtowanie terenu w wielu Chorwackich miejscach jest niezwykle malownicze. Z pięknego morza praktycznie bezpośrednio wyłaniają się malownicze wzgórza a często także wyraźne góry. Takie ukształtowanie nie dość, że bardzo cieszy oko to daje także możliwość nieruchomościom wybudowanym w 10 linii brzegowej na wzgórzach gwarantować piękne panoramy na Morze Adriatyckie.
Ceny nieruchomości na sprzedaż w Chorwacji podaje się podobnie jak w wielu innych krajach europejskich w walucie Euro pomimo faktu, że Chorwacja posiada własną walutę Kunę. Decydując się na nabycie nieruchomości w Chorwacji bardzo ważne jest, aby wiedzieć czego się dokładnie szuka. Jeśli to możliwe warto zawęzić poszukiwania lokalizacyjnie oraz cenowo. Wtedy można zdecydowanie więcej czasu poświęcić na analizę tych nieruchomości, które potencjalnie spełniają nasze oczekiwania. Najlepiej główną selekcję wykonać jeszcze podczas pobytu w Polsce. Gdy zdecydujemy się na wybraną nieruchomość należy dokonać płatnej rezerwacji, aby mieć pewność, że nie będzie ona prezentowana innym zainteresowanym. Nieruchomości w Chorwacji cieszą się cały czas dużym zainteresowaniem wśród mieszkańców prawie całej Europy i nawet jeśli nie występuje typowy ekonomiczny boom to taka ilość zainteresowanych szczególnie w sezonie powoduje, że te najbardziej popularne nieruchomości potrafią szybko znaleźć nowego nabywcę.
Oceń
Tylko zalogowani użytkownicy mogą oceniać
Średnia ocena 5 / 5. Liczba ocen 21
Brak ocen. Bądź pierwszą osobą, która oceni ten post.



Aby zapewnić najlepsze doświadczenia, używamy technologii takich jak pliki cookie do przechowywania i/lub uzyskiwania dostępu do informacji o urządzeniu. Wyrażenie zgody na te technologie pozwoli nam przetwarzać dane, takie jak zachowanie podczas przeglądania lub unikalne identyfikatory na tej stronie. Brak zgody lub jej wycofanie może negatywnie wpłynąć na niektóre funkcje.